- Home
- Komercyjne
- Na wynajem – powierzchnia użytkowa przy ul. 1 Maja 7 – w całości lub w części
Na wynajem – powierzchnia użytkowa przy ul. 1 Maja 7 – w całości lub w części
Opis
Do wynajęcia pierwsze piętro budynku biurowego, położonego w ścisłym centrum miasta – przy ul. 1 Maja 7.
Istnieje możliwość wynajęcia całej kondygnacji lub jej wybranej części.
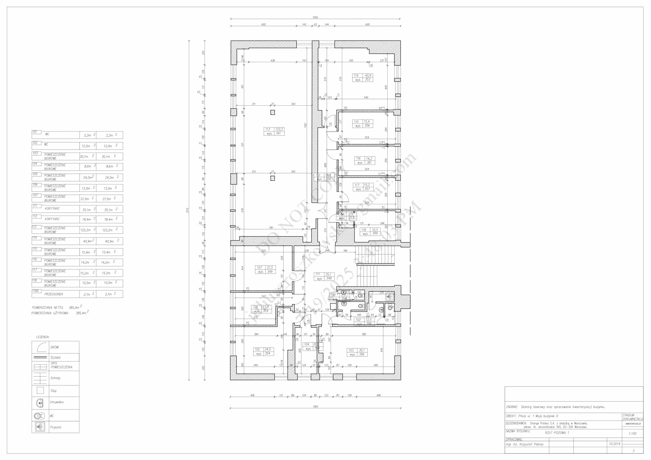
Dostępna powierzchnia użytkowa (bez korytarzy): 331 m²
Całkowita powierzchnia kondygnacji: 385,4 m²
O inwestycji
Budynek stanowi część kompleksu biurowo-usługowego z lat 90-tych, z dostępem do naziemnego parkingu.
Właściciel jest w trakcie uzyskiwania pozwoleń na przebudowę wejścia – w przyszłości będzie ono prowadzić bezpośrednio od ul. 1 Maja.
Doskonała lokalizacja zapewnia łatwy dostęp zarówno komunikacją miejską, jak i samochodem – w pobliżu znajdują się przystanki oraz główne ulice miasta.
Dostępne pomieszczenia (385,4 m² łącznie):
- Pomieszczenie nr 103 – 30,1 m²
- Pomieszczenie nr 104 – 8,6 m²
- Pomieszczenie nr 105 – 24,0 m²
- Pomieszczenie nr 106 – 13,0 m²
- Pomieszczenie nr 107 – 21,5 m²
- Pomieszczenie nr 113 – 122,2 m²
- Pomieszczenie nr 114 – 40,9 m²
- Pomieszczenie nr 115 – 15,4 m²
- Pomieszczenie nr 116 – 14,2 m²
- Pomieszczenie nr 117 – 15,2 m²
- Pomieszczenie nr 118/118A (z przedsionkiem) – 12,6 m²
- Korytarz 111 – 35,1 m²
- Korytarz 112 – 18,4 m²
Parkowanie
Na terenie kompleksu dostępne są miejsca postojowe do wynajęcia – 200 zł brutto / miesiąc.
Warunki najmu
W przypadku najmu całej kondygnacji (385,4 m²):
- Czynsz: 22 zł netto / m²
- Media:
- Prąd – wg podlicznika
- Woda – proporcjonalnie do wynajmowanej powierzchni
- Ogrzewanie – proporcjonalnie do wynajmowanej powierzchni
- Możliwość dowolnej aranżacji korytarzy
Przykładowe warianty najmu częściowego:
1. Wynajem mniejszej połowy kondygnacji – 117,92 m²:
- Pomieszczenia:
- Pomieszczenie nr 103 – 30,1 m²
- Pomieszczenie nr 104 – 8,6 m²
- Pomieszczenie nr 105 – 24,0 m²
- Pomieszczenie nr 106 – 13,0 m²
- Pomieszczenie nr 107 – 21,5 m²
- Część wspólna (korytarze, WC) – 20,72 m²
- Czynsz: 25 zł netto / m² + media
2. Wynajem większej części – 267,48 m²:
- Pomieszczenia:
- Pomieszczenie nr 113 – 122,2 m²
- Pomieszczenie nr 114 – 40,9 m²
- Pomieszczenie nr 115 – 15,4 m²
- Pomieszczenie nr 116 – 14,2 m²
- Pomieszczenie nr 117 – 15,2 m²
- Pomieszczenie nr 118/118A – 12,6 m²
- Część wspólna (korytarze, WC) – 46,98 m²
- Czynsz: 25 zł netto / m² + media
📞 Kontakt: 516 706 768
Zapraszamy do kontaktu w celu uzyskania dodatkowych informacji i umówienia prezentacji.
Podsumowanie
-
Rodzaj Oferty Na Wynajem
-
Typ Nieruchomości Komercyjne
-
Cena 8,450zł/netto miesięcznie
-
Powierzchnia Nieruchomości 385 m²
-
Pokoje 11
-
Łazienki 2
Nieruchomość na mapie
Umów prezentację
Skontaktuj się z agentem
Kawalerka przy ul. Słowackiego 8
- 140,000zł
- Łóżko: 1
- Łazienka: 1
- 20 m²
Na sprzedaż dom wolnostojący w okolicy lasów – Nowy Duninów
- 1,450,000zł
- Łóżek: 5
- Łazienki: 2
- 160 m²
Na sprzedaż dom wolnostojący z bezpośrednim dostępem do jeziora – Białobrzegi k. Płocka
- 1,370,000zł
- Łóżek: 5
- Łazienki: 3
- 170 m²








